LOADING

727070 Side Rd 22c Side Road W Grey Highlands, Ontario N0H 1J0

5 Bedroom 3 Bathroom 3500 - 5000 sqft
Fireplace Inground Pool Central Air Conditioning Forced Air Waterfront Acreage Landscaped

$7,750,000

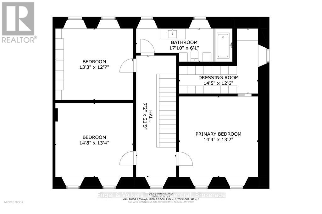
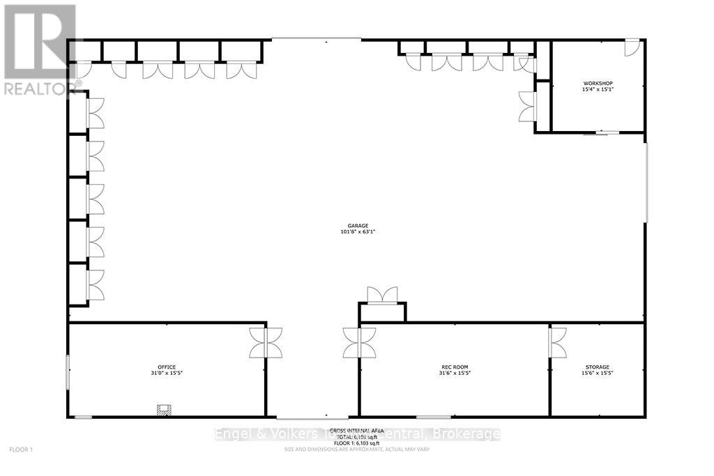
A River Runs Through It - A Once-in-a-Lifetime Estate on 244 Acres. Every once in a lifetime, a property comes along that defies comparison. Set on an awe-inspiring 244 acres with the Beaver River flowing gracefully through, this extraordinary estate is where nature, heritage, and modern luxury live in perfect harmony.The centerpiece is a beautifully restored circa 1840 stone home, meticulously renovated to the highest standards while preserving its timeless charm. Offering over 4,100 square feet, the residence features five bedrooms, a parlor and living room each with gas fireplaces, and a stunning sunroom addition that captures the surrounding landscape in every season. The gourmet kitchen is a chef's dream, outfitted with Miele and Sub-Zero appliances and designed for both entertaining and everyday comfort.Step outside to experience an outdoor paradise - 5,700 square feet of terrace and patio space encircle a luxurious in-ground pool and sunroom, ideal for gatherings under the open sky. The pool house offers its own kitchen, bath, and a cozy bunkroom with four beds, perfect for guests or family getaways. A 6,400 sq. ft. barn completes the estate, providing ample storage and parking for vehicles, equipment, and toys, plus a professional office, and a dedicated sports and billiards room.But it's the river that truly sets this property apart - winding through the land in tranquil beauty, offering an escape into pure nature. Here, you can unplug, grab your fly rod, and wade into the current as the world slows down around you.This is more than a property; it's a legacy estate - a place to reconnect with nature, family, and the simple joys of life.Come see for yourself. Opportunities like this don't come twice in a lifetime. (id:47238)

Property Details

MLS® Number X12493710
Property Type Single Family
Community Name Grey Highlands
Easement Environment Protected, None
Equipment Type Propane Tank
Features Waterway, Level, Guest Suite
Parking Space Total 20
Pool Type Inground Pool
Rental Equipment Type Propane Tank
Structure Patio(s), Barn
View Type View
Water Front Name Beaver River
Water Front Type Waterfront

Building

Bathroom Total 3
Bedrooms Above Ground 5
Bedrooms Total 5
Age 100+ Years
Amenities Fireplace(s)
Appliances Oven - Built-in, Water Heater
Basement Development Unfinished
Basement Type N/a (unfinished)
Construction Style Attachment Detached
Cooling Type Central Air Conditioning
Exterior Finish Stone
Fireplace Present Yes
Fireplace Total 2
Foundation Type Stone
Half Bath Total 1
Heating Fuel Natural Gas
Heating Type Forced Air
Stories Total 3
Size Interior 3500 - 5000 Sqft
Type House

Parking

Detached Garage
Garage

Land

Access Type Year-round Access
Acreage Yes
Landscape Features Landscaped
Sewer Septic System
Size Depth 2018 Ft
Size Frontage 5047 Ft
Size Irregular 5047 X 2018 Ft
Size Total Text 5047 X 2018 Ft|100+ Acres
Surface Water River/stream
Zoning Description A2 & H

Utilities

Electricity Installed

https://www.realtor.ca/real-estate/29050668/727070-side-rd-22c-side-road-w-grey-highlands-grey-highlands

Interested?

Contact us for more information


Generating Captcha

Max Hahne
Broker

(705) 441-5800
www.georgianbaylife.com/
www.facebook.com/maxhahne
ca.linkedin.com/in/maxhahne
www.instagram.com/maxmhahne/

Engel & Volkers Toronto Central
156 Jozo Weider Blvd, Unit 9
The Blue Mountains, Ontario L9Y 0V2

(705) 601-0857
(866) 480-5157
collingwood.evrealestate.com/

James Mcgregor
Salesperson

(226) 974-2144
jamesmcgregor.ca/
www.facebook.com/engelvolkersrealestategreybruceowensound
www.linkedin.com/in/james-mcgregor-220a042ba/
www.instagram.com/

Engel & Volkers Toronto Central
981 2nd Ave East
Owen Sound, Ontario N4K 2H5

(705) 601-0857
(866) 480-5157
owensound.evrealestate.com/

Your Favourites

 

No Favourites Found